SEKA FABRİKASI LOJMAN YAPISI

Proje Tipi :Restorasyon
İş Veren : Kocaeli Büyükşehir Belediyesi

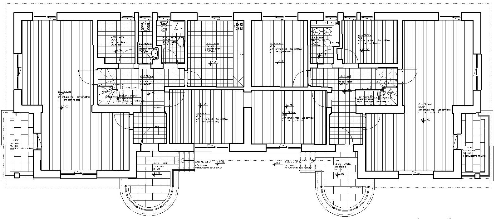
Yapı; Kocaeli İli, İzmit İlçesi, Kozluk mahallesi, 3319 Ada, 1 Parselde yer almaktadır. Eski SEKA selüloz ve kağıt fabrikaları kompleksinin bulunduğu arazi içerisindeki 13 lojman yapısından birisidir. Yapının Kağıt Fabrikasının yapıldığı yıllar olan 1934-36 yılları arasında yapıldığı muhtemeldir. Yapının kuzeydoğusunda Seka 1. Kağıt Fabrikası, güneyinde demiryolu hattı, doğusunda da diğer lojman yapıları yer almaktadır. Diğer lojman yapılarıyla aynı plan ve cephe sistemine sahiptir. Özgün hali ikiz blok olan yapı zemin kat iç mekan düzenlemesiyle tek bloğa dönüştürülmüş ve kültürel amaçlı kullanılmaktadır.

İletişim


Adresimiz

Ömerağa Mh. Şahabettin Bilgisu Cd. Yavuz Apt. No:49/2, İzmit - KOCAELİ

Fax

0-262-321-3599